Prix au m²
69 €
Entre 63 € et 92 €

query_statsStatistiques

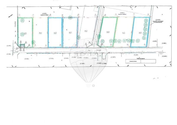
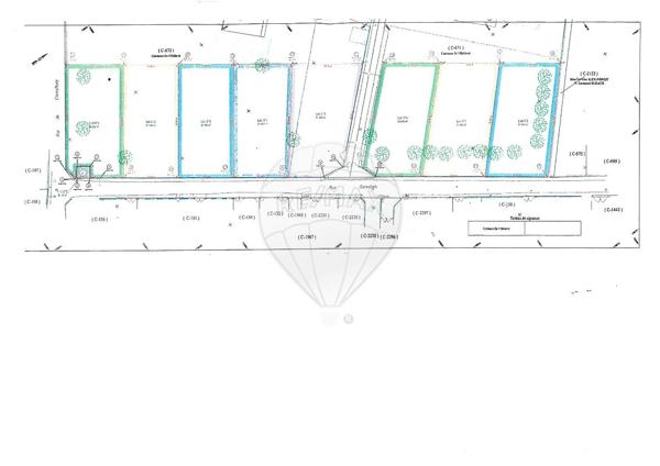
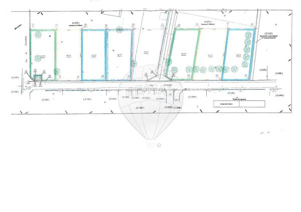
10 terrains à vendre à Villeblevin

sort
Terrain close

Affinez votre recherche

À voir aussi dans la ville de Villeblevin