510 000 €
(736,99 €/m²)
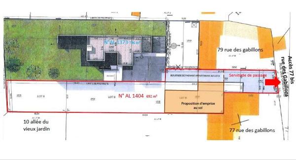
Terrain
• 692 m²
| place | Croissy-sur-Seine | |
| event |
Le 14 janvier 2025
Modifié le 16 janvier 2025 |
|