741 600 €
(1 236 €/m²)
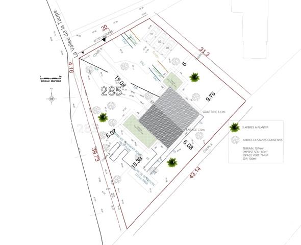
Terrain
• 600 m²
| query_stats | +3% | par rapport au prix moyen dans la zone |
| place | Saint-Germain-en-Laye, Pontel - Schnapper - Sous-préfecture | |
| event | Hier | |