trending_up
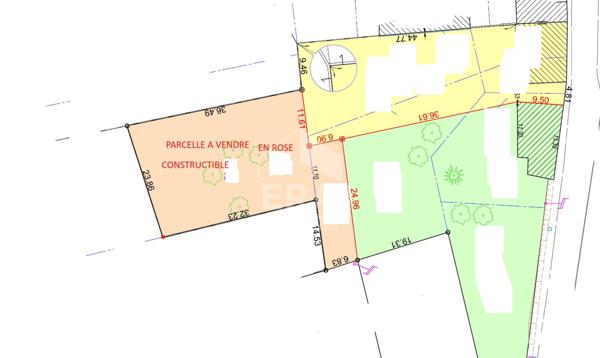
49 990 €
(29,79 €/m²)
Terrain
• 1678 m²
| query_stats | +87% | par rapport au prix moyen dans la zone |
| place | Montpon-Ménestérol | |
| event |
Le 12 avril
Modifié le 6 décembre |
|