Prix au m²
17 €
Entre 17 € et 18 €

query_statsStatistiques

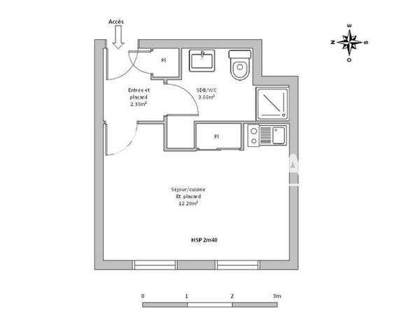
2 appartements à louer à Arras - Universitaire

sort
Appartement close
Quartier Universitaire close