Prix au m²
15 €
Entre 10 € et 21 €

query_statsStatistiques

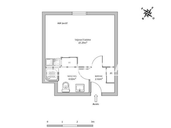
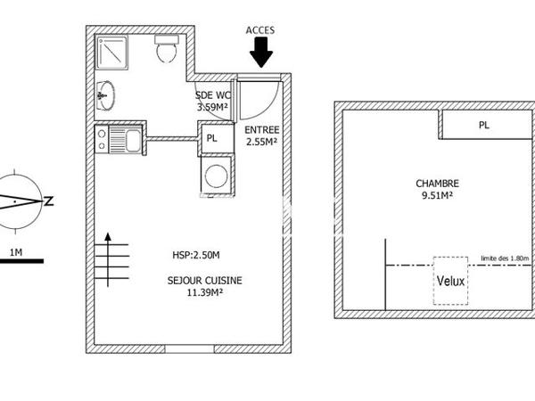
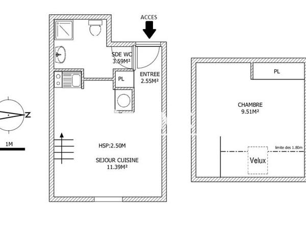
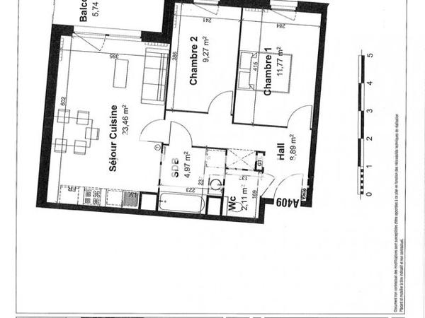
50 appartements à louer à Arras

sort
Appartement close

Affinez votre recherche

À voir aussi dans la ville de Arras