299 990 €
(1 327,39 €/m²)
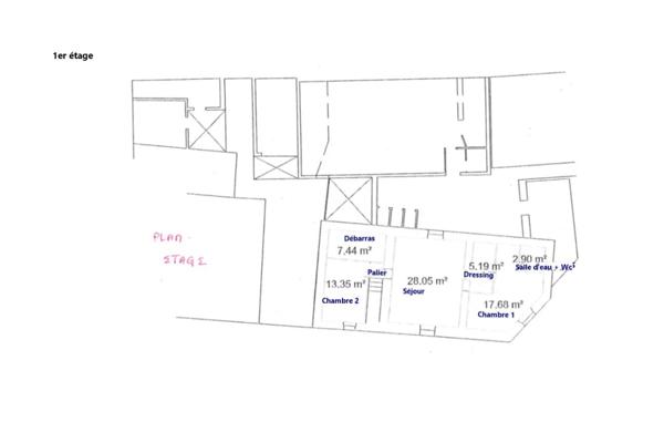
Immeuble
• 8 pièces
• 226 m²
| query_stats | +4% | par rapport au prix moyen dans la zone |
| place | Nantes, Chalâtres | |
| event |
Le 3 juin
Modifié le 1er novembre |
|