240 000 €
(2 553,19 €/m²)
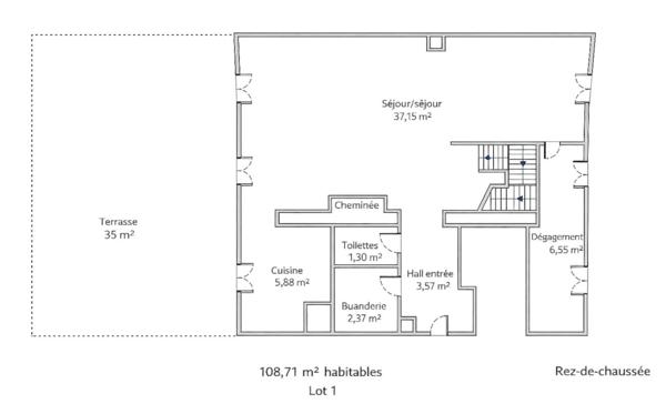
Appartement
• 4 pièces
• 94 m²
| query_stats | -1% | par rapport au prix moyen dans la zone |
| place | Beauregard | |
| event | Le 23 avril | |