580 000 €
(2 974,36 €/m²)
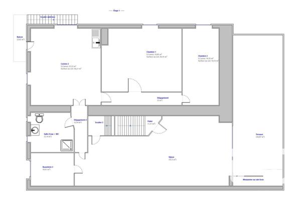
Maison
• 6 pièces
• 195 m²
| query_stats | -29% | par rapport au prix moyen dans la zone |
| place | Fillinges | |
| event |
Le 26 août 2025
Modifié hier |
|