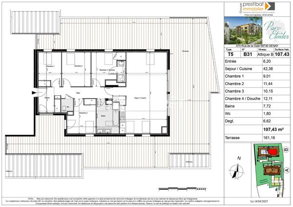
530 000 €
(4 015,15 €/m²)
Maison
• 5 pièces
• 132 m²
| query_stats | +10% | par rapport au prix moyen dans la zone |
| place | Genay | |
| event | Le 29 avril | |