trending_up
612 000 €
(4 243,22 €/m²)
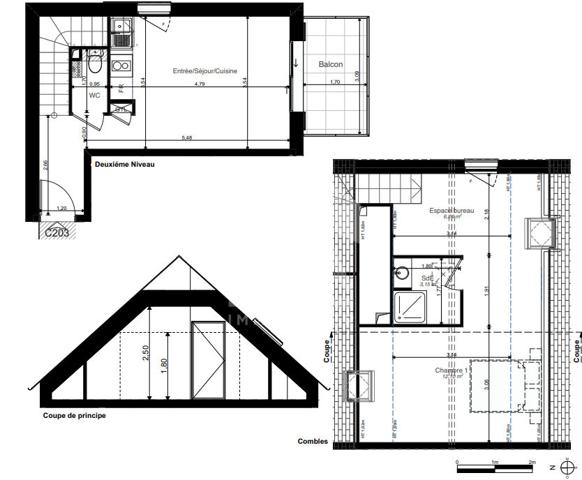
Appartement
• 5 pièces
• 144 m²
| query_stats | +59% | par rapport au prix moyen dans la zone |
| savings | 3.36% | de rentabilité brute |
| place | La Riche | |
| event |
Le 22 septembre 2025
Modifié le 16 mai |
|