249 900 €
(2 380 €/m²)
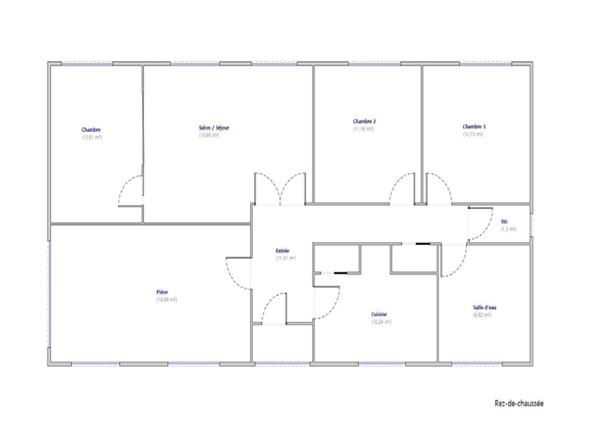
Maison
• 4 pièces
• 105 m²
| query_stats | -11% | par rapport au prix moyen dans la zone |
| savings | 5.44% | de rentabilité brute |
| place | Eaunes | |
| event |
Le 1er septembre 2025
Modifié le 4 février |
|