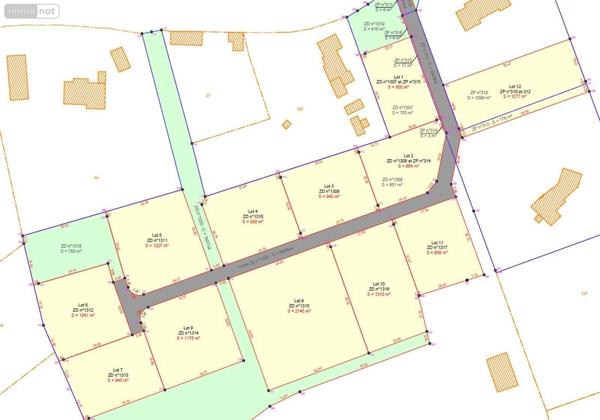
15 biens immobiliers à vendre à La Milesse

sort