trending_down
84 800 €
(807,62 €/m²)
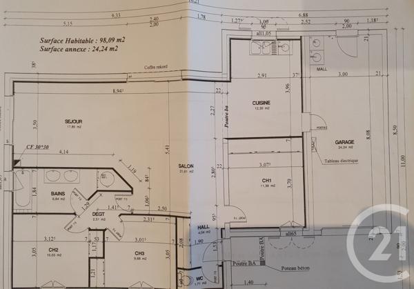
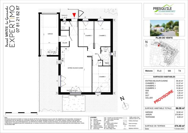
Maison
• 4 pièces
• 105 m²
| query_stats | -66% | par rapport au prix moyen dans la zone |
| savings | 15.50% | de rentabilité brute |
| place | La Garnache | |
| event |
Le 21 février
Modifié aujourd'hui |
|