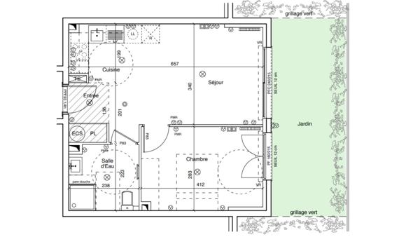
3 studios ou 2 pièces avec jardin à vendre à Castellar

sort
Appartement close
1 pièce close
2 pièces close
Jardin close