430 000 €
(135,56 €/m²)
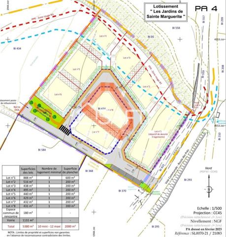
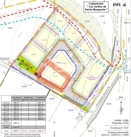
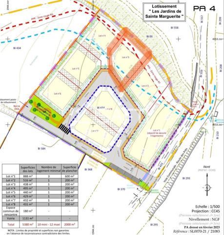
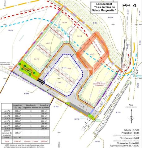
Terrain
• 3172 m²
| query_stats | -23% | par rapport au prix moyen dans la zone |
| place | Gap, Centre-ville | |
| event |
Le 7 décembre
Modifié le 16 décembre |
|