trending_down
50 000 €
(357,14 €/m²)
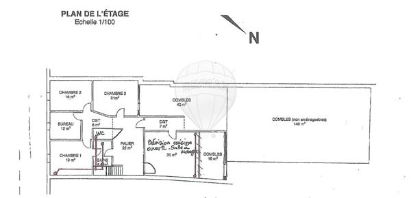
Immeuble
• 4 pièces
• 140 m²
| query_stats | -58% | par rapport au prix moyen dans la zone |
| place | Tartas | |
| event |
Le 26 janvier 2024
Modifié hier |
|