trending_down
213 610 €
(4 617,6 €/m²)
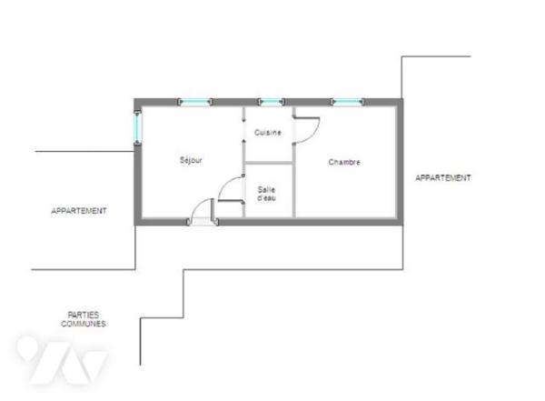
Appartement
• 2 pièces
• 46 m²
| query_stats | +13% | par rapport au prix moyen dans la zone |
| place | Trébeurden | |
| event |
Le 5 septembre
Modifié hier |
|