trending_down
200 000 €
(3 174,6 €/m²)
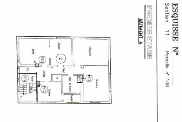
Appartement
• 3 pièces
• 63 m²
| query_stats | +38% | par rapport au prix moyen dans la zone |
| savings | 4.15% | de rentabilité brute |
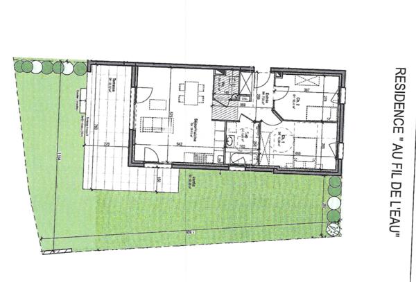
| place | Brumath | |
| event |
Le 3 mars
Modifié le 29 avril |
|