240 000 €
(2 608,7 €/m²)
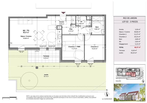
Appartement
• 4 pièces
• 92 m²
| query_stats | -28% | par rapport au prix moyen dans la zone |
| savings | 5.51% | de rentabilité brute |
| place | Obernai | |
| event |
Le 28 avril
Modifié le 29 avril |
|