236 000 €
(3 933,33 €/m²)
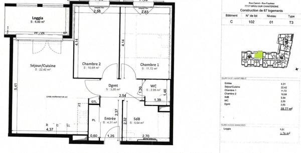
Appartement
• 3 pièces
• 60 m²
| query_stats | +52% | par rapport au prix moyen dans la zone |
| savings | 4.46% | de rentabilité brute |
| place | Brou-sur-Chantereine | |
| event |
Le 4 décembre
Modifié le 8 décembre |
|