trending_down
398 000 €
(4 103,09 €/m²)
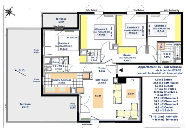
Appartement
• 4 pièces
• 97 m²
| query_stats | +4% | par rapport au prix moyen dans la zone |
| savings | 5.88% | de rentabilité brute |
| place | Louveciennes | |
| event |
Le 25 novembre 2025
Modifié aujourd'hui |
|