trending_down
137 000 €
(4 419,35 €/m²)
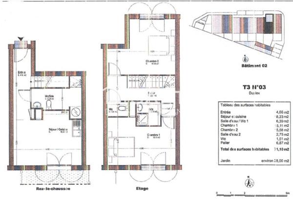
Appartement
• 2 pièces
• 31 m²
| query_stats | -3% | par rapport au prix moyen dans la zone |
| savings | 3.11% | de rentabilité brute |
| place | Dolus-d'Oléron | |
| event |
Le 12 août
Modifié le 31 octobre |
|