trending_down
139 000 €
(2 780 €/m²)
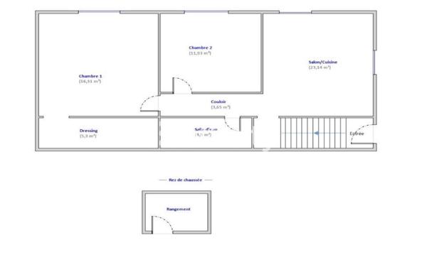
Appartement
• 2 pièces
• 50 m²
| query_stats | -12% | par rapport au prix moyen dans la zone |
| place | Cournonterral | |
| event |
Le 26 septembre 2024
Modifié hier |
|