trending_down
189 000 €
(3 086,22 €/m²)
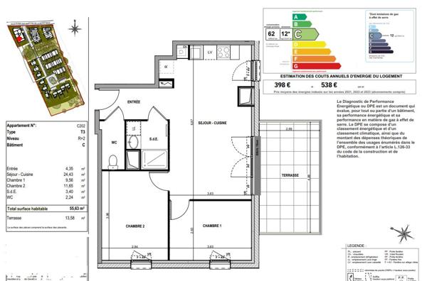
Appartement
• 3 pièces
• 61 m²
| query_stats | +3% | par rapport au prix moyen dans la zone |
| savings | 4.46% | de rentabilité brute |
| place | Couëron, Villages | |
| event |
Le 28 janvier
Modifié le 17 mars |
|