trending_down
395 000 €
(1 837,21 €/m²)
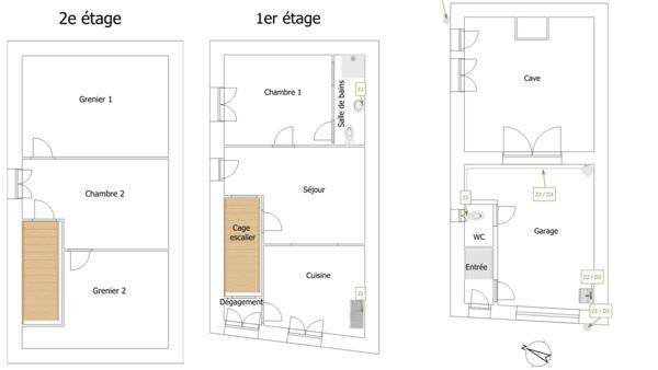
Maison
• 7 pièces
• 215 m²
| query_stats | +3% | par rapport au prix moyen dans la zone |
| place | Lons-le-Saunier | |
| event |
Le 9 juillet 2025
Modifié hier |
|