trending_down
238 500 €
(2 315,53 €/m²)
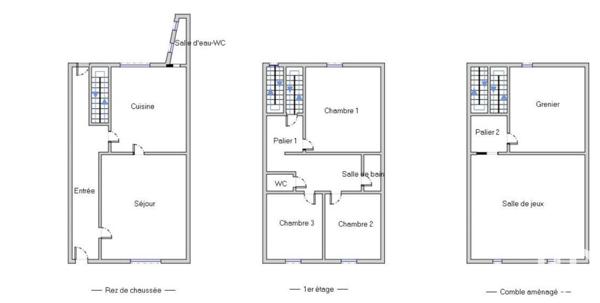
Maison
• 6 pièces
• 103 m²
| query_stats | +97% | par rapport au prix moyen dans la zone |
| place | Champdeniers | |
| event |
Le 22 novembre 2025
Modifié le 19 février |
|