trending_down
329 000 €
(2 990,91 €/m²)
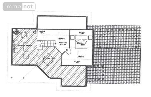
Maison
• 5 pièces
• 110 m²
query_stats | -1% | par rapport au prix moyen dans la zone |
place | Bias | |
event |
Le 7 août
Modifié le 30 septembre |