trending_down
790 000 €
(4 340,66 €/m²)
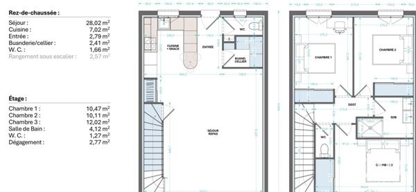
Maison
• 6 pièces
• 182 m²
| query_stats | +7% | par rapport au prix moyen dans la zone |
| place | Fayence | |
| event |
Le 12 juin 2025
Modifié le 4 février |
|