Prix au m²
118 €
Entre 92 € et 143 €

query_statsStatistiques

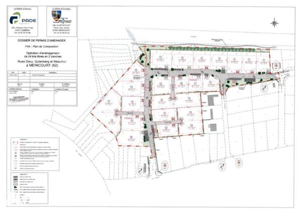
13 terrains à vendre à Méricourt

sort
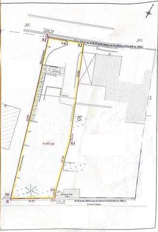
Terrain close

Affinez votre recherche

À voir aussi dans la ville de Méricourt