trending_down
118 646 €
(305,84 €/m²)
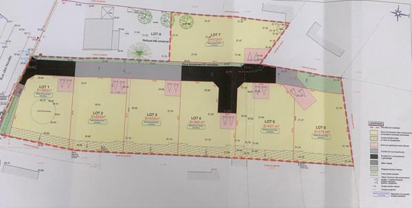
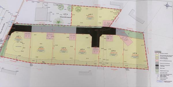
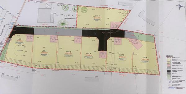
Terrain
| query_stats | -30% | par rapport au prix moyen dans la zone |
| place | Sainte-Pazanne | |
| event |
Le 13 juillet 2023
Modifié le 5 mars |
|