450 €/mois
                            
                            
                                (6,08 €/m²)
                            
                        
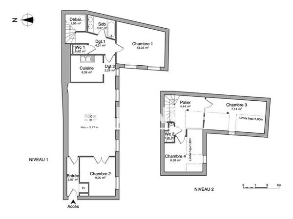
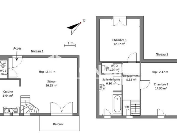
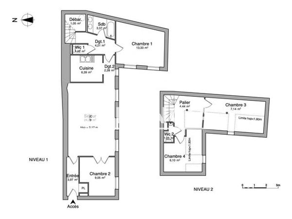
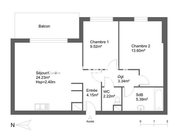
                            Appartement
                             • 3 pièces
                             • 74 m²
                        
                        | place | Moncel-sur-Vair | |
| event | Aujourd'hui | |