Prix au m²
12 €
Entre 10 € et 17 €

query_statsStatistiques

6 appartements à louer à Riedisheim

sort
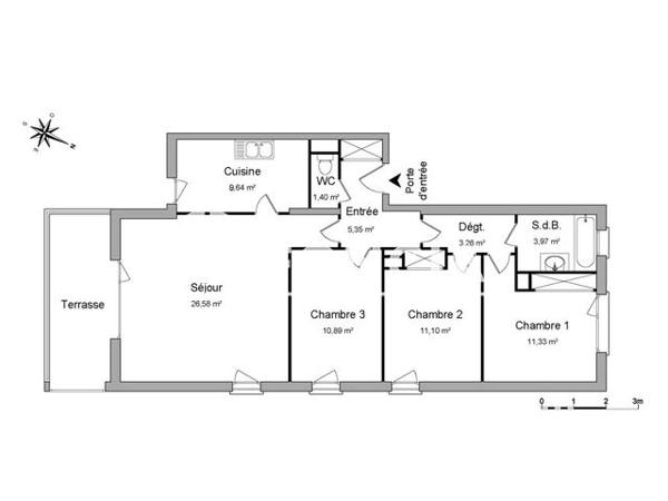
Appartement close

Affinez votre recherche

À voir aussi dans la ville de Riedisheim