1 930 €/mois
(29,51 €/m²)
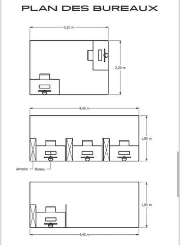
Local commercial
• 2 pièces
• 65 m²
| place | Montreuil, Solidarité - Carnot | |
| event |
Le 14 janvier
Modifié hier |
|