Prix au m²
17 €
Entre 14 € et 35 €

query_statsStatistiques

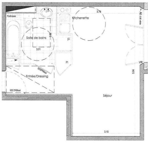
7 studios ou 2 pièces à louer à Saint-Herblain

sort
Appartement close
1 pièce close
2 pièces close

Affinez votre recherche

À voir aussi dans la ville de Saint-Herblain