13 appartements de 3 pièces ou plus à vendre à Paris 8e Arrondissement - Etoile

sort
Appartement close
Quartier Etoile close
3 pièces close
4 pièces close
5+ pièce close
Variation de prix
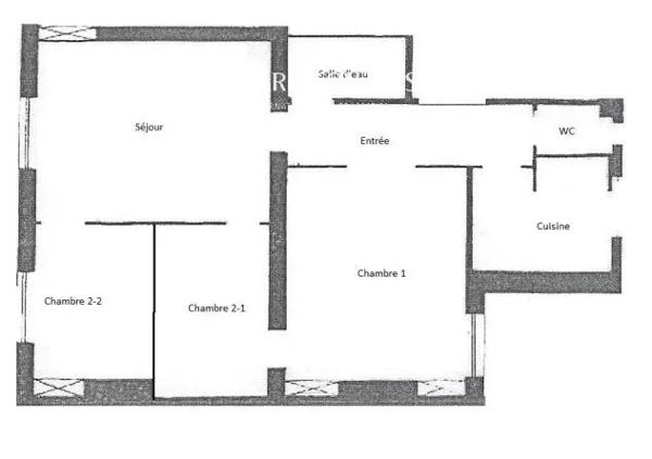
Appartement haussmanien en dernier étage rénové par architecte de renom
trending_down 4 380 000 €
(26 917,4 €/m²)
Appartement • 5 pièces • 163 m²
query_stats +107% par rapport au prix moyen dans la zone
savings 1.54% de rentabilité brute
place Paris 8e Arrondissement, Etoile
event Le 18 décembre 2025
Modifié le 6 janvier