305 000 €
(5 495,5 €/m²)
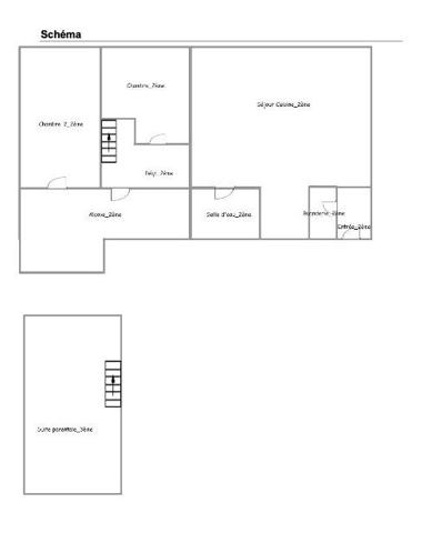
Appartement
• 2 pièces
• 56 m²
query_stats | -12% | par rapport au prix moyen dans la zone |
savings | 4.97% | de rentabilité brute |
place | Argonay | |
event | Le 5 octobre |