trending_down
199 000 €
(4 544,42 €/m²)
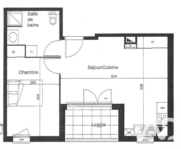
Appartement
• 2 pièces
• 44 m²
| query_stats | +80% | par rapport au prix moyen dans la zone |
| savings | 3.89% | de rentabilité brute |
| place | Lozanne | |
| event |
Le 3 janvier
Modifié le 22 avril |
|