trending_down
215 000 €
(1 327,16 €/m²)
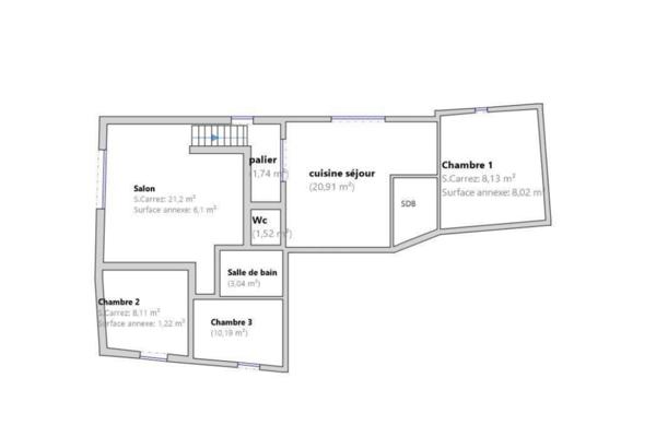
Appartement
• 6 pièces
• 162 m²
| query_stats | -52% | par rapport au prix moyen dans la zone |
| place | Sain-Bel | |
| event |
Le 29 novembre 2024
Modifié le 3 décembre |
|