trending_up
221 000 €
(4 671,32 €/m²)
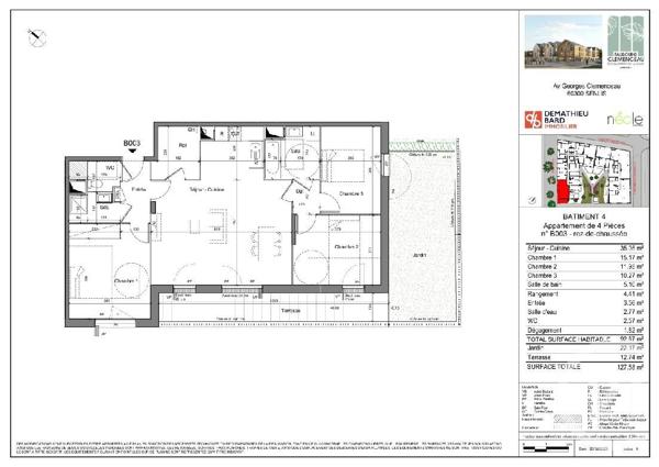
Appartement
• 47 m²
| query_stats | +28% | par rapport au prix moyen dans la zone |
| savings | 4.29% | de rentabilité brute |
| place | Senlis, Villevert | |
| event |
Le 12 juillet
Modifié aujourd'hui |
|