trending_down
280 000 €
(6 086,96 €/m²)
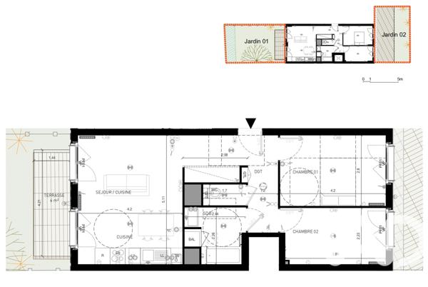
Appartement
• 2 pièces
• 46 m²
| query_stats | +13% | par rapport au prix moyen dans la zone |
| savings | 4.58% | de rentabilité brute |
| place | Serris | |
| event |
Le 26 février
Modifié hier |
|