trending_down
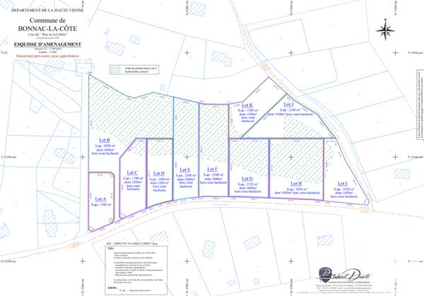
28 000 €
(16,97 €/m²)
Terrain
• 1650 m²
| query_stats | -29% | par rapport au prix moyen dans la zone |
| place | Bonnac-la-Côte | |
| event |
Le 13 août
Modifié le 8 octobre |
|