Prix au m²
591 €
Entre 480 € et 707 €

query_statsStatistiques

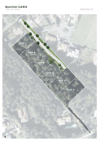
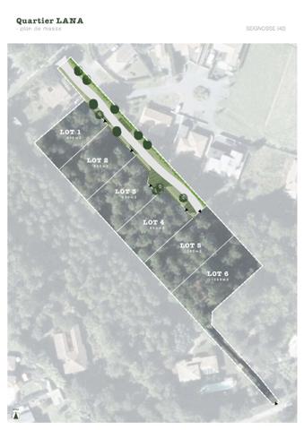
8 terrains à vendre à Seignosse

sort
Terrain close

Affinez votre recherche

À voir aussi dans la ville de Seignosse