trending_down
110 000 €
(2 558,14 €/m²)
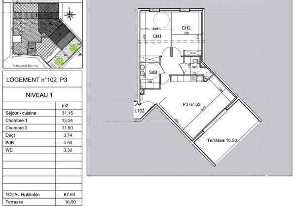
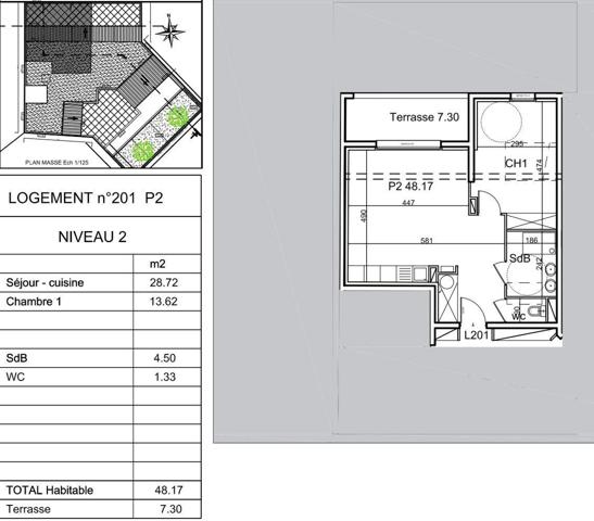
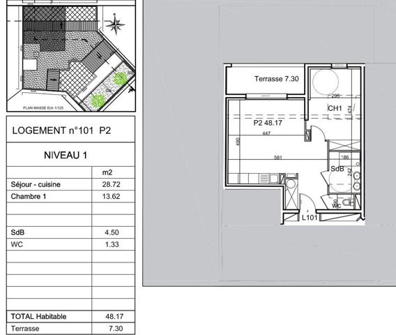
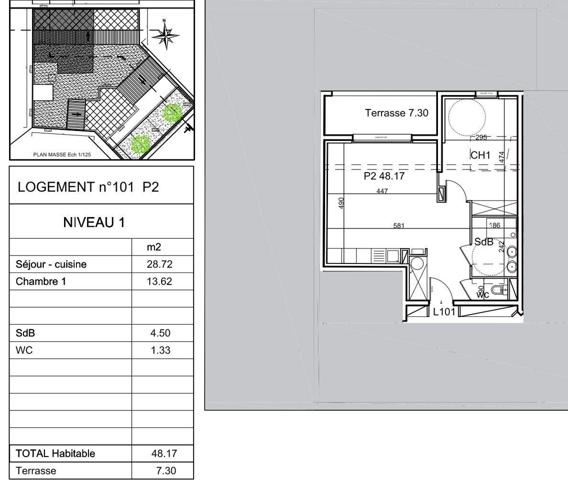
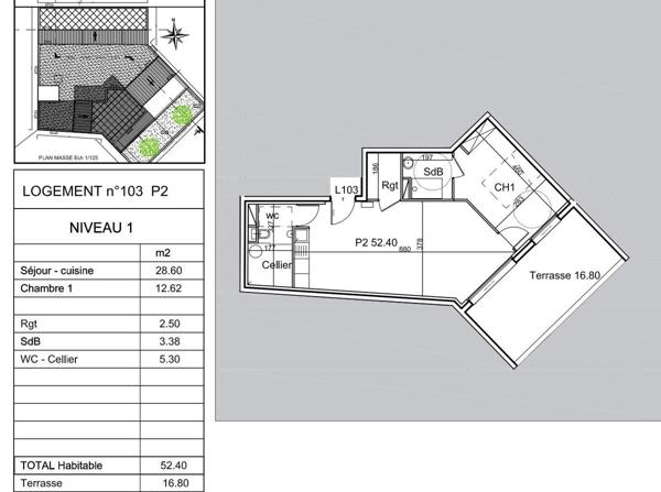
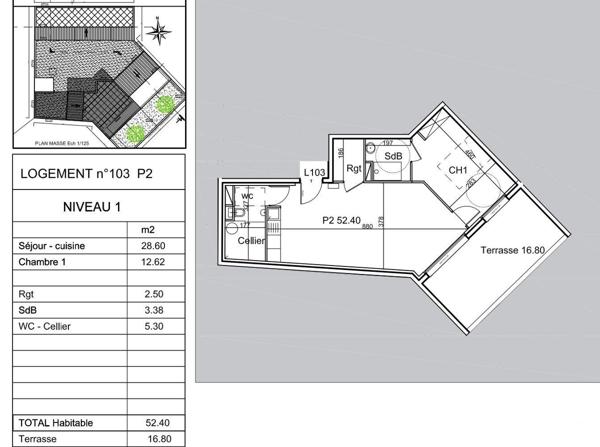
Appartement
• 2 pièces
• 43 m²
| query_stats | +5% | par rapport au prix moyen dans la zone |
| savings | 6.18% | de rentabilité brute |
| place | Nîmes | |
| event |
Le 31 octobre
Modifié le 13 décembre |
|